Jak szeroko należy otworzyć chłodziarkę lub zamrażarkę aby swobodnie wysunąć szuflady?
Problem
- Minimalny kąt otwarcia drzwi niezbędny do swobodnego wyjęcia wyposażenia.
- Ile miejsca potrzebuję, aby swobodnie wyjąć pojemniki z chłodziarki lub zamrażarki.
- Rozmiary urządzenia chłodniczego.
Dotyczy
- Chłodziarko-zamrażarki
- Chłodziarki
- Zamrażarki
Rozwiązanie
Minimalny kąt otwarcia drzwi chłodziarki lub zamrażarki umożliwiający swobodne ich otwarcie jest zależny od modelu urządzenia.
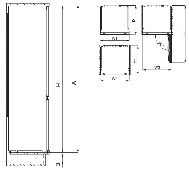
W instrukcji obsługi swojego znajdziesz podrozdział "Wymiary" (w rozdziale "Instalacja") w którym wskazane są:
- Całkowite wymiary - wysokość, szerokość i głębokość urządzenia bez uchwytu.
- Wymagana przestrzeń - wysokość, szerokość i głębokość urządzenia wraz z uchwytem oraz przestrzenią niezbędną do swobodnego obiegu powietrza chłodzącego.
- Całkowita wymagana przestrzeń - wysokość, szerokość i głębokość urządzenia wraz z uchwytem, przestrzenią niezbędną do swobodnego obiegu powietrza chłodzącego oraz przestrzenią niezbędną do otwarcia drzwi pod minimalnym kątem umożliwiającym wyjęcie całego wyposażenia wnętrza.
Poniżej znajdziesz przykładowy schemat znajdujący się w instrukcjach obsługi:

Instrukcję obsługi możesz pobrać również na naszej stronie internetowej w zakładce "Znajdź instrukcję obsługi".
Czy ten artykuł był pomocny?
Powiązane artykuły
- Temperatura w chłodziarce jest zbyt niska
- Naklejka na bocznej ściance chłodziarko-zamrażarki
- Chłodziarko-zamrażarka sygnalizuje alarm, świeci się czerwona kontrolka ostrzegawcza, miga symbol trójkąta lub emitowane są krótkie sygnały dźwiękowe
- Lokalizacja tacy ociekowej w lodówce
- Sprężarka w chłodziarce/zamrażarce pracuje w sposób ciągły
- Temperatura w chłodziarko-zamrażarce jest zbyt wysoka
- Urządzenie chłodnicze hałasuje
- Czym są dwa czarne elementy dołączone do lodówki?
- Drzwi chłodziarko-zamrażarki otwierają się z trudnością
- Brak tabliczki znamionowej w lodówce